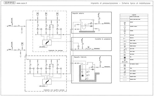
Questi disegni, liberamente disponibili in formato DWG e PDF, sono realizzati per una progettazione di massima.
I dati riportati sono indicativi e potrebbero non essere aggiornati a successive modifiche intervenute nei materiali.
|
80 kB |
470 kB |
Argomenti correlati
- Gruppo pompe pressurizzazione orizzontale - Disegni
- Gruppo pompe pressurizzazione verticale - Disegni